LDC Approved — Loft Conversion & Rear Extension, Hazelwood Avenue
PROJECT CONCEPT
Expanding usable space through smart, permitted development design — adding comfort, functionality, and value without altering the character of the home.
PROJECT DESCRIPTION
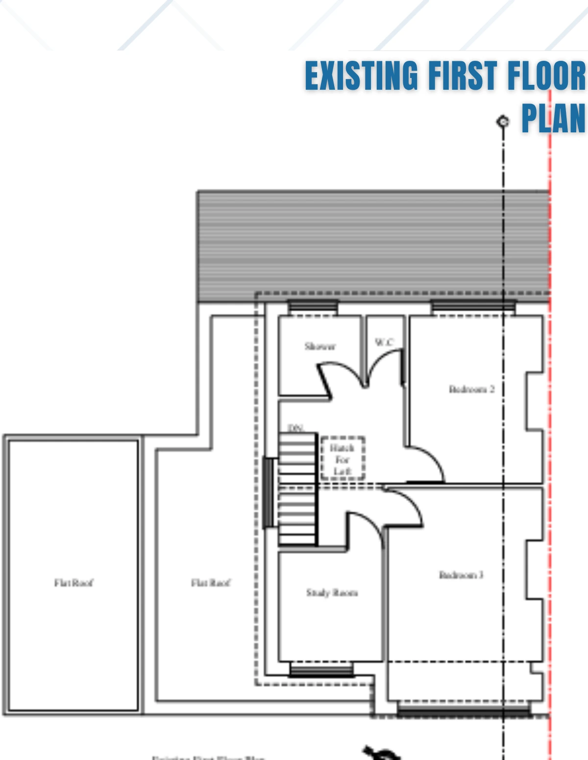
Our team secured a Lawful Development Certificate (LDC) for a loft conversion and rear extension at a residential property on Hazelwood Avenue.
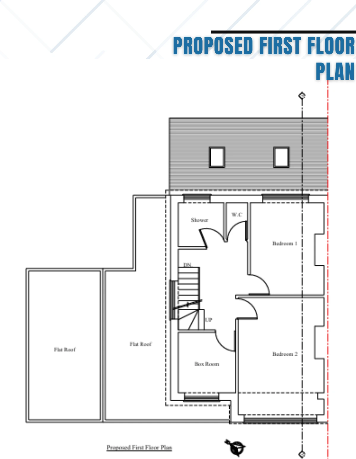
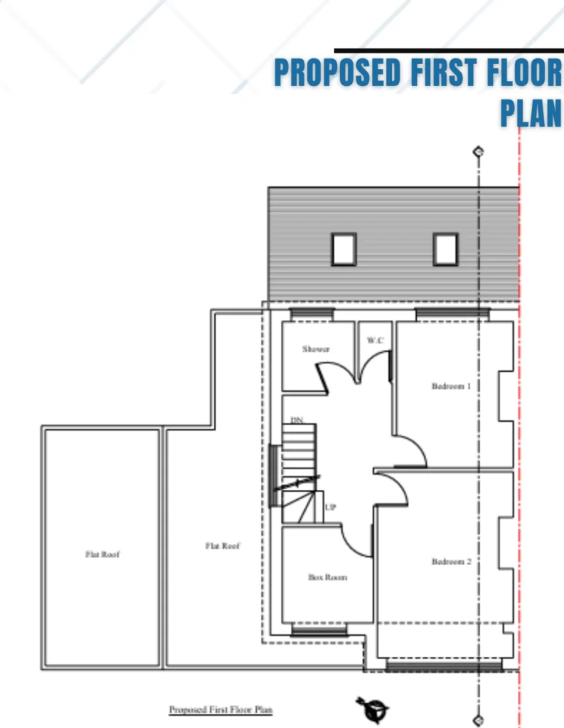
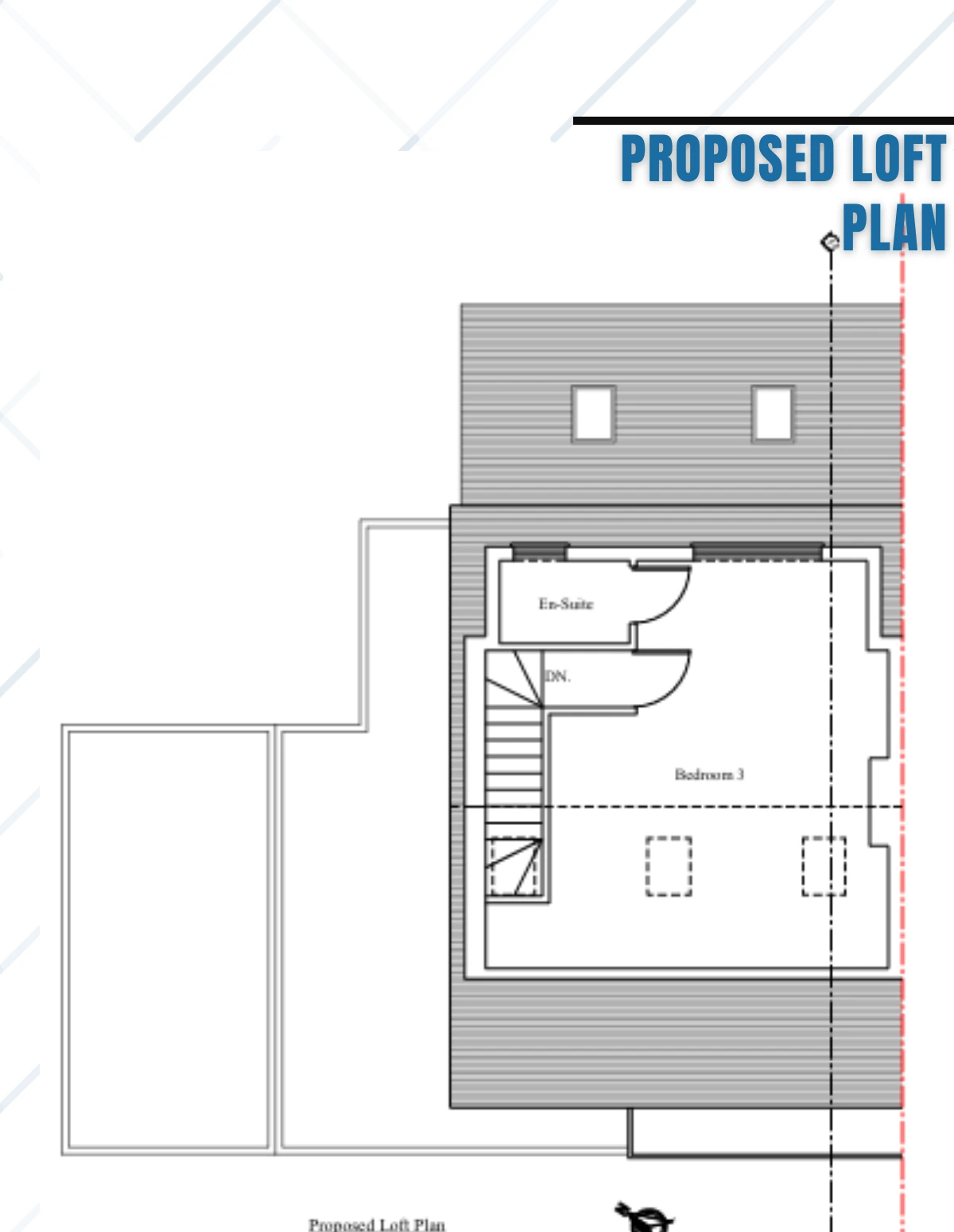
The approved scheme introduces a new bedroom within the loft and a ground-floor rear extension to enhance the kitchen and living space, creating a more open and functional family layout.
We delivered a full set of precise architectural drawings, demonstrating compliance with permitted development criteria and giving the homeowner a clear, build-ready foundation for the next stage.
Let’s Discuss Your Project
Got an idea brewing? A space that needs reimagining? Or just curious how we can help? Share your vision below, and let’s turn “what if” into “what’s next.”
Or You Can Directly Contact Us For Quotations!





