Fife Road

  • Home
  • Portfolio Tags
  • Fife Road
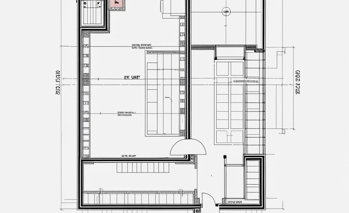
Commercial Shop Unit Lease Plan
PROJECT INFORMATION Project Type: Lease Plan Architecture Designer: ARM Design & Build Location: Fife Road Share: Commercial Shop Unit Lease Plan – Fife Road PROJECT CONCEPT The purpose of this project was to prepare a precise lease plan for a commercial shop unit located on Fife Road. The plan needed…
Read More

ARM Design & Build is an integrated architecture and construction practice specializing in compliant, creative spaces.

Contact Info
Office Address

Dalton House, 60 Windsor Avenue, London, SW19 2RR

UP